盛世江南中餐廳裝修工程
| 項目名稱 | 盛世江南中餐廳裝修工程 | 行業(yè)屬性 | 酒店/餐飲/會所 |
| 項目地址 | 南京近郊近郊泰山南路 | 項目造價 | 63.0萬 |
| 主關鍵詞 |
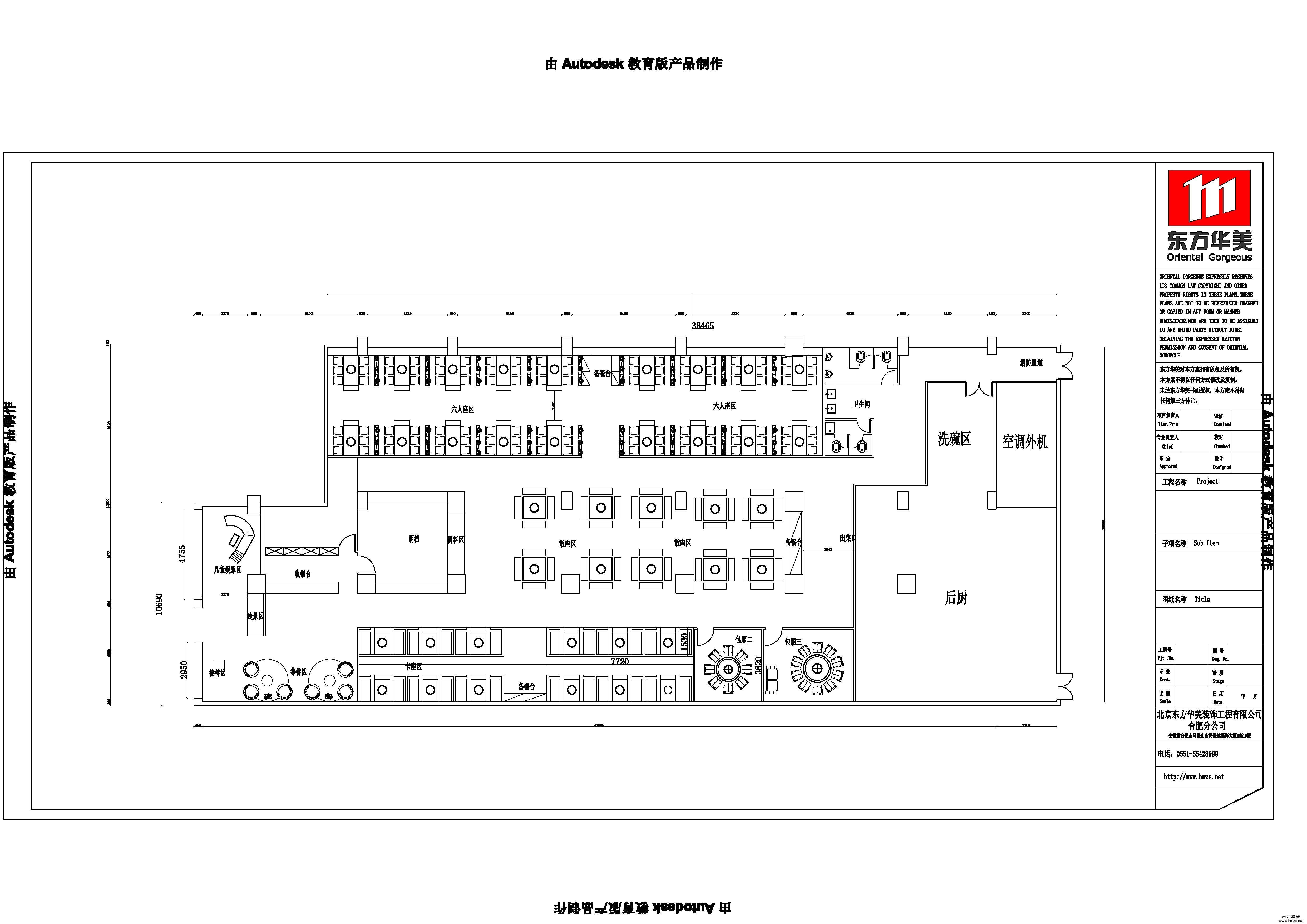
▄原建筑結構分析: 在本案例中,設計師多用暖色調來烘托一種歡愉的就餐氛圍,有大小包間和散座,極大的方便了就餐者,給顧客帶來一種溫馨美好的就餐體驗
▄設計需求: 包間的裝修風格則不盡相同,但是每個包間都加入了中國的餐廳元素,利用隔窗、燈具等元素打造出優(yōu)雅的氛圍,顯示出了古樸平和的氣韻。
▄設計風格定位: 接待大廳的光線柔和,塑造了溫馨的氛圍,為顧客提供了一個舒適溫暖的環(huán)境。包間的裝修風格則不盡相同,但是每個包間都加入了中國的餐廳元素,利用隔窗、燈具等元素打造出優(yōu)雅的氛圍,顯示出了古樸平和的氣韻。


北京鑄誠大廈辦公裝修工程
北京銀河SOHO辦公裝修工程
301醫(yī)院裝修工程
