晉商聯合大廈辦公裝修工程
| 項目名稱 | 晉商聯合大廈辦公裝修工程 | 行業屬性 | 互聯網/電商/科技 |
| 項目地址 | 北京市豐臺區東管頭街附近 | 項目造價 | 62.4萬 |
| 主關鍵詞 |
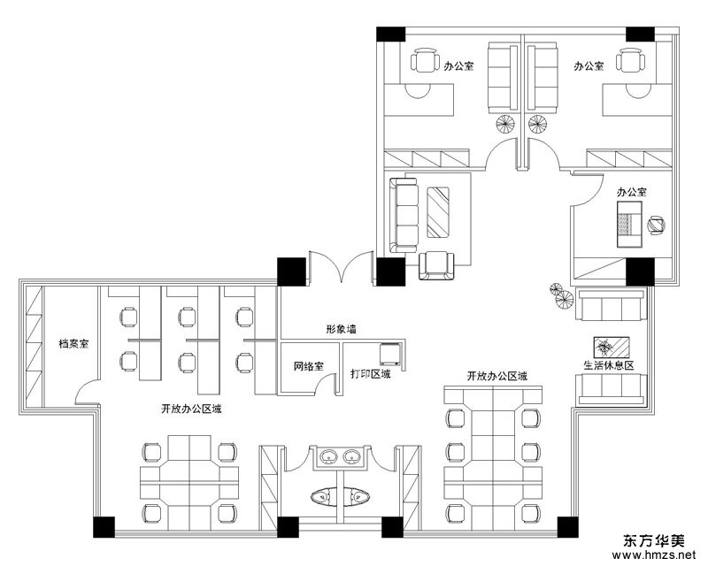
▄原建筑結構分析: 追求簡約明亮,現代氣息豐富。布局富有條理行,整體凸顯現代辦公室的整體感覺。甲方的空間功能需求包括前臺接待區、公共辦公區、會議室、總經理辦公室、走廊、茶水間、綜合辦公室、財務室、雜物間、洽談室等。
▄設計需求: 除了考慮本項目的位置環境,同時還融入客戶特點,體現客戶公司的性格特點,公司的作風,體現其中的文化??紤]構建成一個自由舒適、工作與休閑相結合的功能區域,員工們可以隨時在這里組建協同合作,增強團隊合作共事的同時,享受輕松愉悅的環境。
▄設計風格定位: 本案采用的綠色環保簡裝風格。前衛時尚為主,公司都是年輕人,所以在部分區域色彩上采用明亮輕快的綠色,色彩鮮艷強調空間的動感,再搭配了簡潔干凈為主的白色和灰色系列,綠色環保,經久耐用。設計風格上和選材搭配上比較偏向于家裝,讓大家在工作的時候仿佛在家中一樣放松,這樣既能緩解一下緊張的工作環境,又能打造一下偏人性化、個性化的辦公空間。


北京鑄誠大廈辦公裝修工程
北京銀河SOHO辦公裝修工程
301醫院裝修工程
